![]() |
|
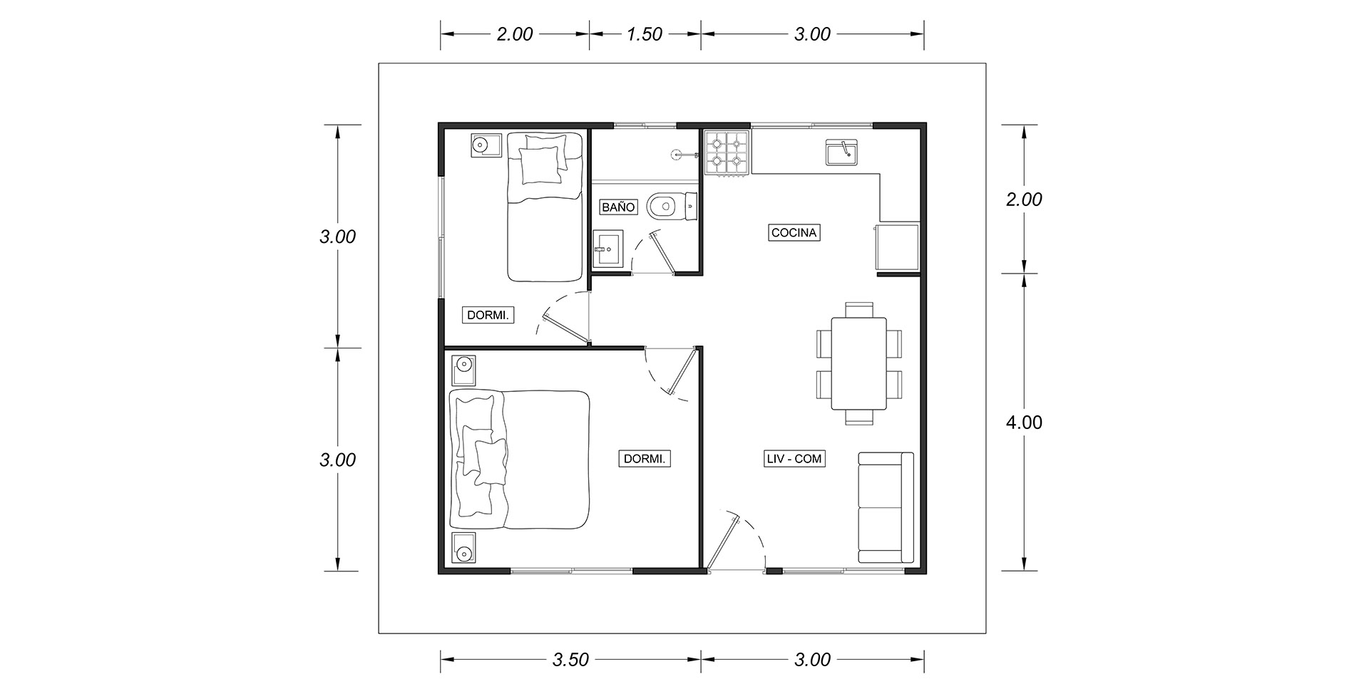
MODELO ECO 8 |
Las imágenes mostradas son ilustrativas.
CONTADO DE LISTA:
$14.248.892
CONTADO OFERTA:
$12.291.215
(en un solo pago)
Anticipo $9.783.741
y 15 cuotas de $730.877
Adicional por instalación en terraza 10%
TECHO:
Chapa galvanizada cal. 27 (color natural).
EXTERIOR: revestido en placas cementicias.
INTERIOR: revestido en placas de roca de yeso (atornilladas).
VENTANAS: en chapa más un aireador en el baño.
PUERTAS: de entrada chapa y puerta placa en baño.
INSTALACIONES: panel sanitario en polipropileno
fusionado para agua fría y caliente (baño) y preinstalado
un circuito compuesto por caños conductores y cajas para
tomas y llaves (sin cables)
Incluida la realización de contrapiso
(mano de obra solamente, materiales a cargo del cliente comprador).
Flete y armado sin cargo hasta 50 Km del Punto de Venta (consultar costos por distancia mayor)
OPCIONAL GALERÍA AL FRENTE
Av. Intendente Jorge R. Varela 1103
(Ex av. Rivadavia).
Teléfono: 03489-468877
Teléfono: 03489-427072