![]() |
|
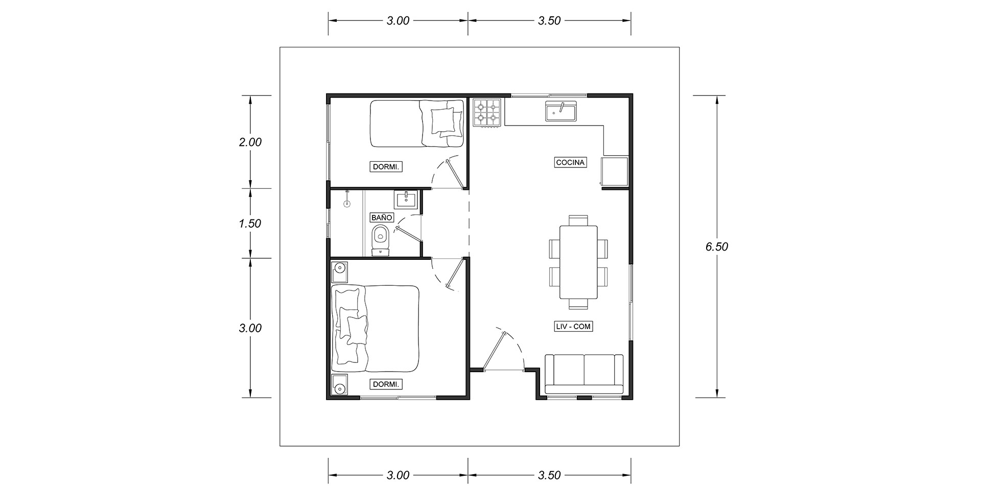
MODELO AREQUITO |
Las imágenes mostradas son ilustrativas.
CONTADO DE LISTA:
$19.366.632
CONTADO OFERTA:
$17.956.741
(en un solo pago)
Anticipo $13.556.642
y 20 cuotas de $810.786
Adicional por instalación en terraza 10%
CUBIERTA DE TECHO: Chapa aluminizada Cal.25 Cincalum Natural acanalada.
PANELES EXTERIORES: Revestidos con placas cementicias aptas para cualquier tipo de revestimiento o terminación.
AISLANTES: Espuma de polietileno aluminizado de 10mm en todas las paredes perimetrales y cielorraso.
CIELORRASO: Revestido en placas de roca de yeso.
PANELES INTERIORES: Revestidos en placa de roca de yeso, tanto en las perimetrales como en las divisiones de los
ambientes.
VENTANAS: En aluminio blanco corredizas a dos hojas con vidrios y burletes con tapa premarcos (Premium).
PUERTAS: Puerta de entrada doble chapa reforzada. Puertas interiores placas de 0.70 x 2.00mts.
INSTALACIÓN ELÉCTRICA: Se preinstalará dentro de los paneles el circuito compuesto por los caños conductores de
los cables y las respectivas cajas para interruptores y tomas de luz sin cables ni accesorios.
- MANO DE OBRA DE CONTRAPISO INCLUIDO HASTA 70 Km.
- DESAGÜES Y PANEL SANITARIO PARA LA INSTALACIÓN DE AGUA FRÍA Y CALIENTE
   EN BAÑO.
IMPORTANTE: SIN GASTOS EXTRAS, NI FLETES, NI GASTOS DE ARMADO HASTA 1OO Km. DESDE EL PUNTO DE VENTA.
Av. Intendente Jorge R. Varela 1103
(Ex av. Rivadavia).
Teléfono: 03489-468877
Teléfono: 03489-427072